Градоначальник Ростова сообщил о строительстве новых городских автодорог

Об этом Алексей Логвиненко рассказал в своём тг-канале. В частности, градоначальник сообщил,

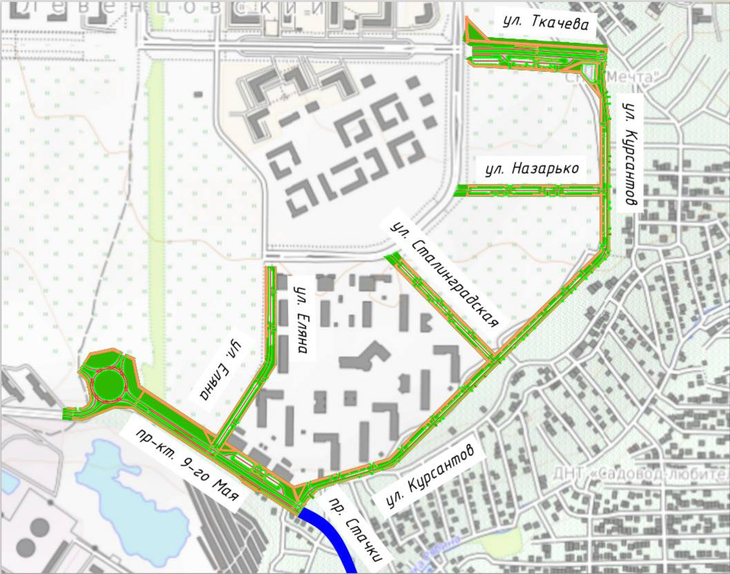
Об этом Алексей Логвиненко рассказал в своём тг-канале.

В частности, градоначальник сообщил, что получено положительное заключение государственной экспертизы проектов на строительство автомобильных дорог микрорайонов №№ 9,10,.11 жилого района «Левенцовский» по ул. 9-го Мая (ул. Курсантов - пр-кт Солженицына), ул. Ткачева (пр-кт Маршала Жукова-ул. Курсантов), ул. Сталинградская (пр-кт Маршала Жукова - ул. Курсантов), ул. Еляна (пр-кт Маршала Жукова - пр-кт 9-го Мая), по ул. Курсантов (ул. Ткачева - пр-кт 9-го Мая).

Новые дороги, считает Логвиненко, позволят не только улучшить транспортное сообщение внутри района, но и свяжут мкр. Левенцовский с автодорогой по пр. Стачки, проект реконструкции которой проходит государственную экспертизу.

Подготовил

Последние новости

Этапы организации похорон: что важно знать

Пошаговое руководство по проведению прощальной церемонии с уважением и вниманием к деталям

Как ремонт сервоприводов влияет на производительность оборудования?

Что происходит с линией после вмешательства в "сердце" автоматики и как это влияет на итоговую эффективность

В Ростове-на-Дону стартовал форум «Интеграция 2025»

pxhere.com Юрий Слюсарь дал старт форуму «Интеграция». Мероприятие проходит в Ростове-на-Дону второй раз.

Коррекция фиброза и возрастных изменений: когда показан эндотканевой лифтинг

Как современная технология помогает вернуть коже упругость, убрать отёки и улучшить рельеф без хирургии

На этом сайте вы сможете узнать актуальные данные о погоде в Сыктывкаре, включая прогнозы на ближайшие дни и часы

Комментарии (0)

Добавить комментарий

Ваш email не публикуется. Обязательные поля отмечены *